Пн–Вс:
Ваш регион:

← Вернуться ко всем проектам

Проект дома №11 — проект каркасного дома

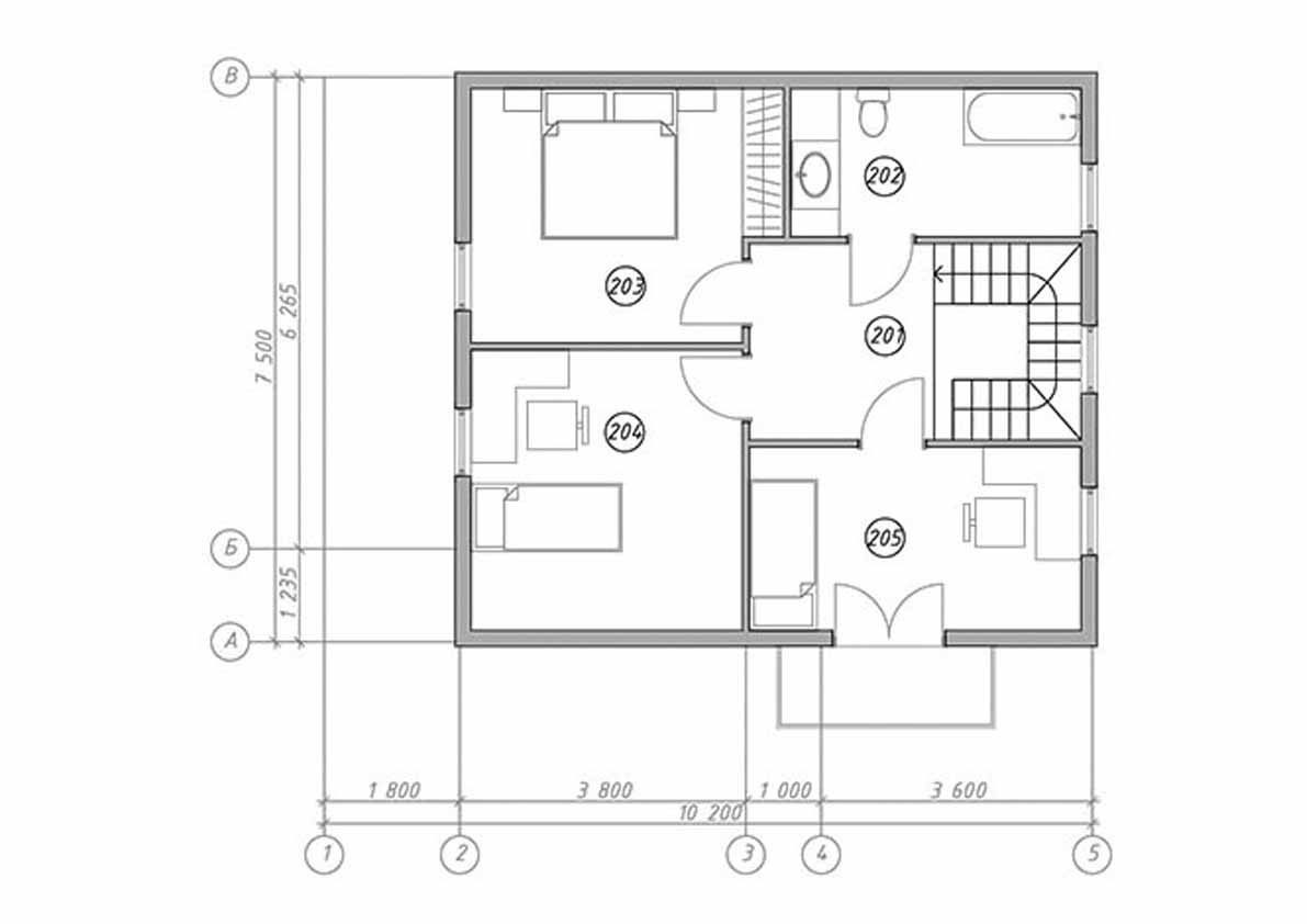
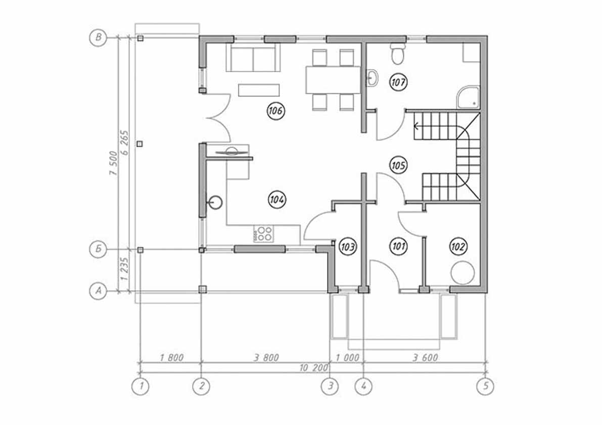
Двухэтажный дом 108 м², 5 комнат — оптимален для семьи из трёх-пяти человек. Внутренняя планировка предлагает гибкое распределение зон: спальни, гостиная, кухня-столовая, возможно рабочий кабинет. Наличие террасы добавляет уют при вечерних или утренних чаепитиях. Строительство займет около 38 дней. Это надёжный, сбалансированный вариант «среднего класса».

Важная информация о стоимости

Указанные цены носят ориентировочный характер и зависят от выбранных материалов, региона строительства и дополнительных опций. Итоговая стоимость рассчитывается после уточнения всех параметров и подготовки детального коммерческого предложения.

  • Цены не включают отделку и мебель;
  • Допускаются изменения планировок, материалов, инженерных систем;
  • Перечень работ зависит от выбранного пакета (фундамент, инженерные сети, отделка и т.д.);
  • Стоимость монтажа отдельных этапов рассчитывается дополнительно;
  • Доступна разработка индивидуальных решений под ваши задачи;
  • Возможна корректировка под климатические, региональные и архитектурные требования;
  • Актуальность условий подтверждается коммерческим предложением.

Свяжитесь с нами через форму заявки, оставьте контакты и мы подготовим точный расчёт именно для вашего проекта.