Пн–Вс:
Ваш регион:

← Вернуться ко всем проектам

Проект дома №8 — проект каркасного дома

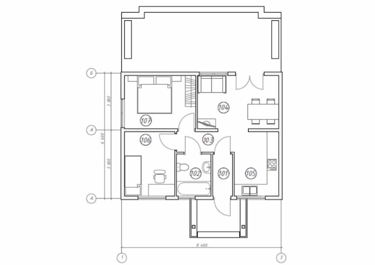
Компактный одноэтажный дом 48,95 м² с 3 комнатами — бюджетный и лёгкий в реализации. Подходит как сезонное жильё, дача или временный дом. Минимальная площадь снижает затраты на материалы и отопление, а простая форма ускоряет строительство — ~30 дней. Идеален для тех, кто ценит экономию и практичность.

Важная информация о стоимости

Указанные цены носят ориентировочный характер и зависят от выбранных материалов, региона строительства и дополнительных опций. Итоговая стоимость рассчитывается после уточнения всех параметров и подготовки детального коммерческого предложения.

  • Цены не включают отделку и мебель;
  • Допускаются изменения планировок, материалов, инженерных систем;
  • Перечень работ зависит от выбранного пакета (фундамент, инженерные сети, отделка и т.д.);
  • Стоимость монтажа отдельных этапов рассчитывается дополнительно;
  • Доступна разработка индивидуальных решений под ваши задачи;
  • Возможна корректировка под климатические, региональные и архитектурные требования;
  • Актуальность условий подтверждается коммерческим предложением.

Свяжитесь с нами через форму заявки, оставьте контакты и мы подготовим точный расчёт именно для вашего проекта.